





LOCALES EN VENTA
OLIVERA 900 ESQUINA MARIANO ACOSTA.
UBICACIÓN: En centro comercial.
ZONA: Ituzaingó sur.
SERVICIOS: Todos.
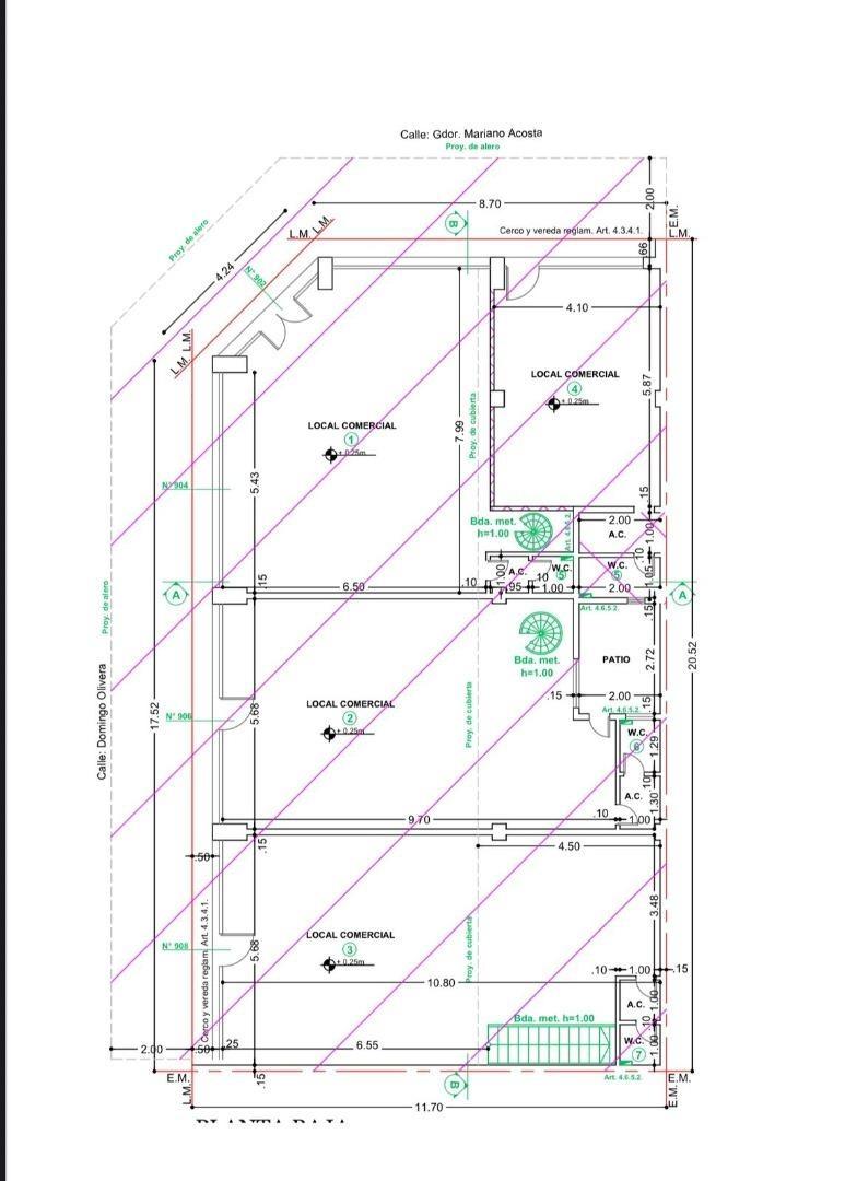
MEDIDAS: 4 exclusivos locales en venta en Ituzaingó Sur centro a estrenar; ubicados en Ituzaingó lado sur, a 2 cuadras de Avenida Rivadavia, a una cuadra del teatro Gran Ituzaingó, una cuadra de la Plaza San Martin, zona de gran densidad de población.
*Dos locales sobre Olivera de 91m2 totales (66m2 PB y 25m2 PA) Precio: U$S 120.000 cada uno.
*Local Mariano Acosta esquina Olivera de 80m2 totales ( 55m2 PB y 25 m2 PA ) Precio: U$S 160.000.
*Local Mariano Acosta ante esquina de 28 m2 cubiertos. Precio: U$S 65.000.
ESCUCHA OFERTAS
Olivera al 900
Apto prof.: No
Apto crédito: No
Superficie total: 80 m²
Superficie cubierta: 80 m²
Código aviso: 2790